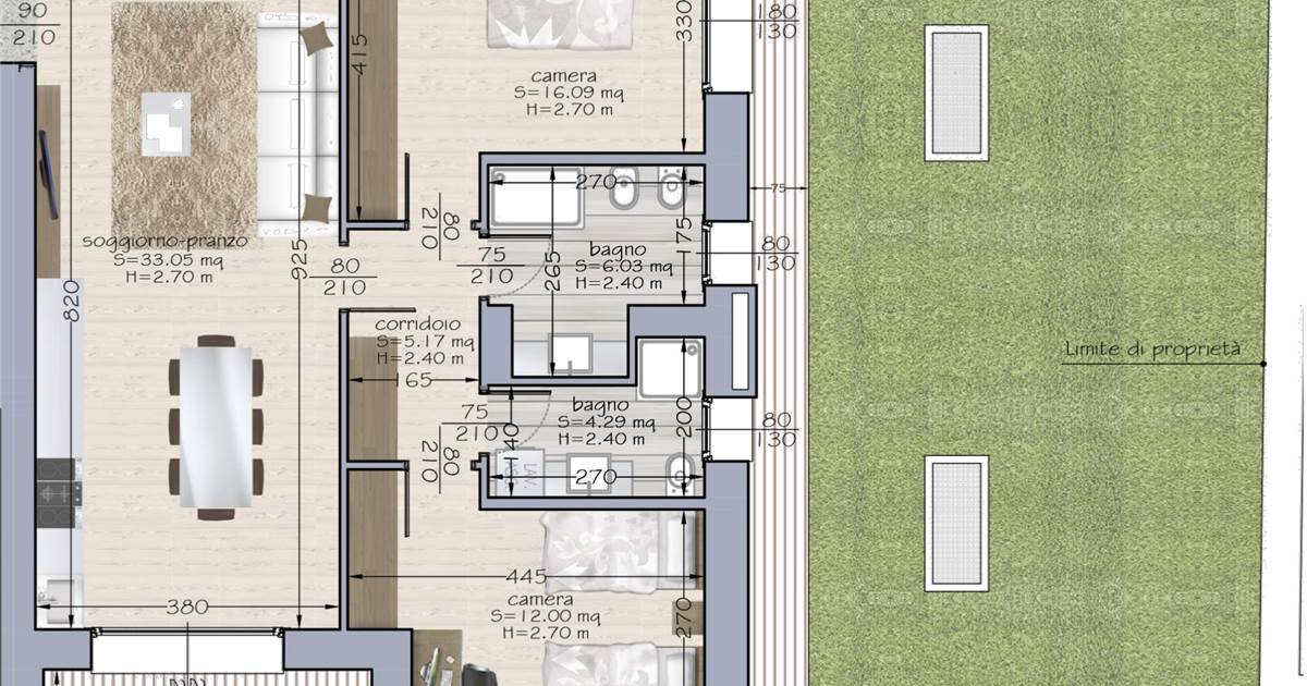
Proponiamo in centro a Pieve di Soligo, in elegante palazzina di nuova costruzione, APPARTAMENTO 2 CAMERE AL PIANO TERRA. La zona giorno è composta da soggiorno open-space di circa 30 mq con cucina a vista ed accesso ad un ampio porticato di 8 mq e allo scoperto di proprietà. Nella zona notte troviamo disimpegno, camera matrimoniale, camera doppia e due bagni. Scoperto di proprietà di circa 270 mq.
Possibilità di scelta garage di varie metrature.
L'immobile verrà realizzato in stile moderno con tecnologie e isolamenti all'avanguardia al fine di ridurre al minimo i consumi energetici. Le finiture di ottima qualità potranno essere personalizzate.
Questa soluzione rappresenta un’opportunità ideale sia per famiglie e giovani coppie alla ricerca di una casa moderna e funzionale, sia per chi desidera effettuare un investimento in un contesto di nuova realizzazione, sempre molto richiesto sul mercato.
Stato Immobile
In Costruzione
Orientamento
Est Nord Ovest
Tipo Riscaldam.
Pompa di Calore
Fonte Energetica
Fotovoltaico
Raffrescamento
Predisposizione
Infissi
Legno Triplo Vetro
Pavim. Giorno
Personalizzato
Pavim. Notte
Personalizzato
Isolamento termico
Cappotto esterno
Accessori
Ascensore, Impianto Fotovoltaico, Lavanderia, Passaggio Pedonale, Porta Blindata, Tapparelle Elettriche, Tripli Vetri, Video Citofono