Ricerca rapida
Codice
Tipologia
Categoria
Città
Zona
Descrizione
Prezzo (da - a)
-
Mq (da - a)
-
Ordine
Cerca
Agenzie Immobiliari di Marca
Scheda Immobile

PIEVE DI SOLIGO

Codice V759LP
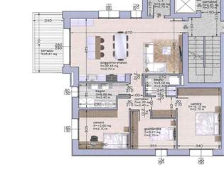
Proponiamo in centro a Pieve di Soligo, in elegante palazzina di nuova costruzione, APPARTAMENTO 3 CAMERE AL SECONDO PIANO. La zona giorno è composta da soggiorno open-space di circa 40 mq con cucina a vista ed accesso ad un ampio terrazzo di 11 mq. Nella zona notte troviamo ampio disimpegno, camera matrimoniale, camera doppia, bagno, studio/guardaroba e secondo bagno. Possibilità di scelta garage di varie metrature.
L'immobile verrà realizzato in stile moderno con tecnologie e isolamenti all'avanguardia al fine di ridurre al minimo i consumi energetici. Le finiture di ottima qualità potranno essere personalizzate.
Questa soluzione rappresenta un’opportunità ideale sia per famiglie e giovani coppie alla ricerca di una casa moderna e funzionale, sia per chi desidera effettuare un investimento in un contesto di nuova realizzazione, sempre molto richiesto sul mercato.
Prezzo
Riservato
Mq
124,55
Classe
A4
Locali
6
Camere
3
Bagni
2
Box
1
Stato Immobile
In Costruzione
Grado
Signorile
Posizione
Centro
Piano
Secondo
Orientamento
Est Sud Ovest
Lati Liberi
3
Tipo Soggiorno
Doppio
Tipo Cucina
A Vista
Riscaldamento
Autonomo
Tipo Riscaldam.
Pompa di Calore
Tipo Impianto
Pavimento
Fonte Energetica
Fotovoltaico
Raffrescamento
Predisposizione
Infissi
Legno Triplo Vetro
Serramenti
Nuovo
Persiana
Alluminio
Pavim. Giorno
Personalizzato
Pavim. Notte
Personalizzato
Isolamento
Presente
Isolamento termico
Cappotto esterno
Accessori
Ascensore, Impianto Fotovoltaico, Lavanderia, Passaggio Pedonale, Porta Blindata, Tapparelle Elettriche, Tripli Vetri, Video Citofono
Cookie preference